Modern kitchen and dining area with wooden floor, white cabinets, stainless steel appliances, and a large dining table with woven chairs.

PREDAJ

205 m²

A simple illustration of a boat floating on water with a small flag on top.

200 m²

No image provided to describe.

3-izbový rodinný dom s terasou a záhradkou

Rača, Bratislava

420.000 €

Kontaktujte ma

TYP: Rodinný dom

IZBY: 3

VÝMERA: 205 m²

ZASTAVANÁ PLOCHA: 70 m²

PLOCHA POZEMKU: 200 m²

TERASA + LOGGIA: 30 m² + 3 m²

PIVNICA: 38 m²

ORIENTÁCIA: JV

ZARIADENIE: Kompletne zariadené

KONŠTRUKCIA: Tehlová

STAV: Kompletná rekonštrukcia

IS: Elektrika, Plyn, Voda, Kanalizácia

CHARAKTERISTIKA:

Dobrá lokalita, slnečný, tiché prostredie

Popis nehnuteľnosti

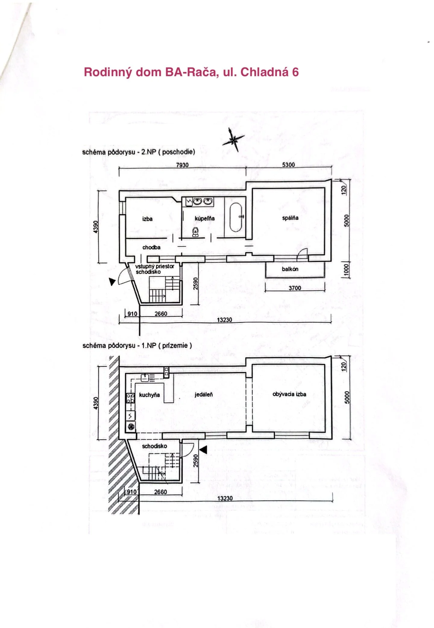
Ponúkame na predaj priestranný, trojpodlažný rodinný dom s podkrovím vo vyhľadávanej časti Bratislavy – Rača, ulica Chladná 6. Lokalita sa nachádza v bezprostrednej blízkosti lesov Malých Karpát.

Kompletná konštrukcia je z r. 2021, posledná bola v r. 2025 - vymenená strešná krytina. V rámci interiéru bola zmenená aj dispozícia. Vymenené sú elektrické rozvody, vodovodné rozvody a odpady sú napojené na verejnú kanalizáciu.

Dom je samostatne stojaci, zasadený do svahu.

PARAMETRE NEHNUTEĽNOSTI:

Celková plocha: 205 m²

1. podlažie: 68,74 m²

2. podlažie: 68,74 m²

Pivnica: 38 m² (vchod zo dvora)

Podkrovie: 30 m² (predpríprava na pracovňu/hobby miestnosť – aktuálne prístupné zvonku, možnosť prepojenia z chodby 2. podlažia)

Počet izieb: 3

Kúpeľňa má dve umývadlá, vaňu a WC

Kuchyňa je plne vybavená so zabudovanými vstavanými spotrebičmi, umývačka riadu, plynový sporák, elektrická rúra, mikrovlnná rúra

STAV A VYBAVENIE:

Materiál: tehla, zateplený

Rok výstavby: 1962

Kompletná rekonštrukcia interiéru: 2021

Nová strecha: 2025

Dispozičné zmeny

Nové rozvody vody, elektriny a optiky (UPC)

Okná: plastové

Dvere: drevené interiérové, bezpečnostné vchodové aj dvere do záhrady

Podlahy: laminát + dlažba

Vykurovanie: plynový kotol Porotherm

Bojler: 150 litrov

Kuchynská linka: nová, vstavané spotrebiče (umývačka riadu, plynový sporák, elektrická rúra, mikrovlnná rúra)

Bezpečnostný systém: alarm

Internet: optika UPC

EXTERIÉR A POZEMOK:

Pozemok 200 m²

Záhrada 100 m² – udržiavaná, vysadená okrasnou zeleňou a trávou

Možnosť osadenia bazéna, trampolíny alebo oddychovej zóny

Terasa: cca 30 m² (ideálna na grilovanie a rodinné posedenia)

Sklad náradia: 7 m²

Inžinierske siete: obecná voda, plyn, kanalizácia, elektrina

BONUS:

Kompletný stavebný projekt na nadstavbu ďalšieho podlažia k dispozícii pre nového majiteľa

LOKALITA:

Tichá ulica so zástavbou rodinných domov, bez ruchu dopravy

Blízkosť lesa – ideálne na prechádzky a šport

Centrum Rače: cca 1 km pešo (obchody, škôlky, školy, reštaurácie, malý trh, zdravotné stredisko, lekáreň, banka, amfiteáter, kúpalisko)

MHD: električky, autobusy - výborné spojenie do centra mesta

Diaľničný obchvat D4: cca 5 km

Ďalšie nehnuteľnosti